Basic
Installationsplan: Basic
Beschreibung
Mit diesem Paket erhalten Sie präzise Installationspläne für Ihren Baufortschritt. Perfekt geeignet für schnelle und technische Anforderungen und ideal für Kunden, die eine effiziente Umsetzung ohne Details wünschen.
Die Projektpauschale beinhaltet Besprechungen, die Küchentypisierung und den Print der uns zur
Verfügung gestellten Pläne. Sonderaufwände, wie beispielsweise nicht vermaßte Grundrisse, oder
Änderungswünsche werden separat mit 120€ exkl. USt. berechnet.
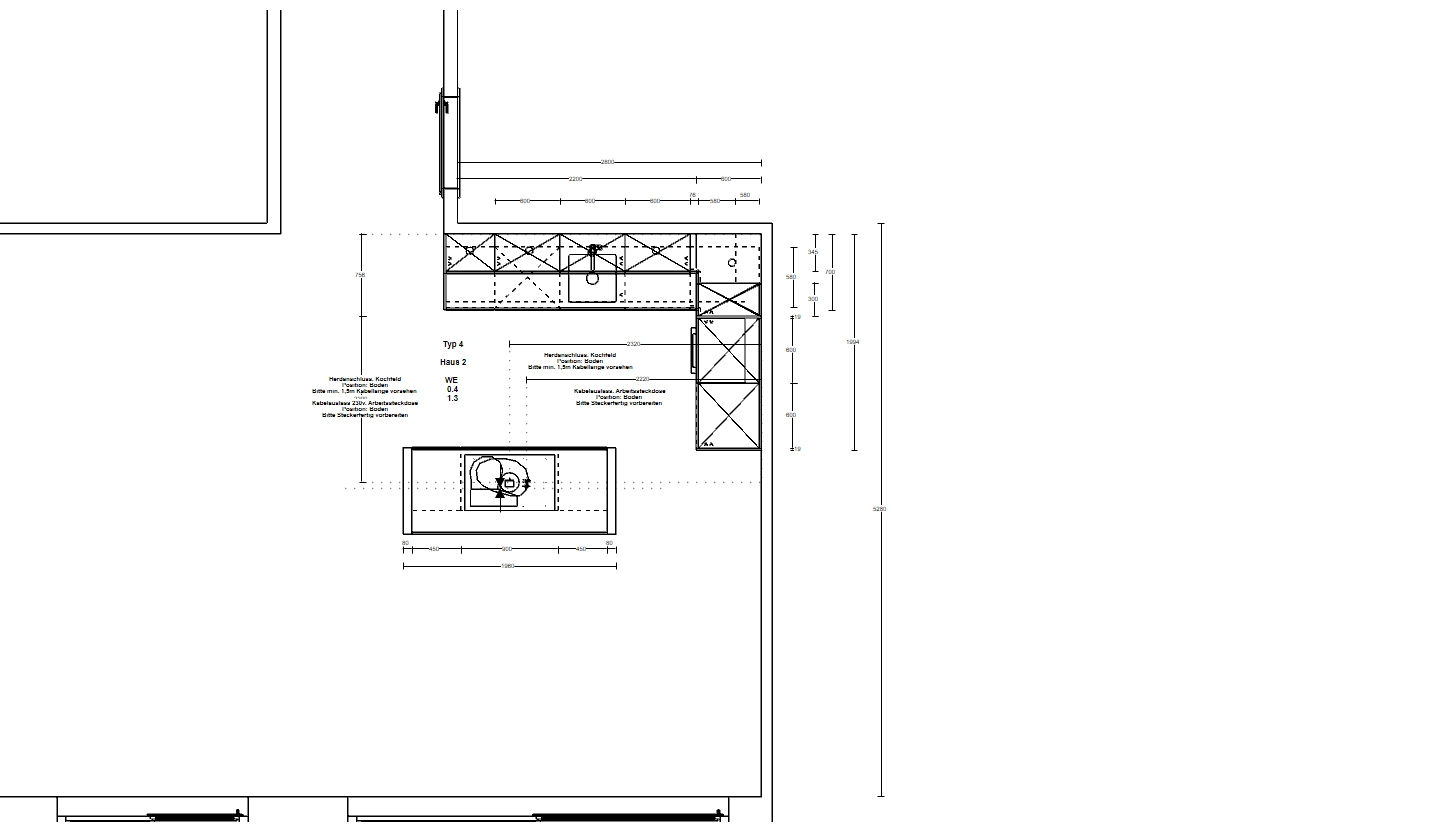
Küchenplanung
Installationspläne nach LV
Einfache Planung ohne Visualisierung
Preis
120 € exkl. USt.
Projektpauschale
360 € exkl. USt.
Je nach Grundriss erarbeiten wir mehrere Küchenkonzepte in Anlehnung an Ihre Vorstellungen
und Wünsche. Gemeinsam durchleben wir den theoretischen- und den praktischen Teil einer
Küchenplanung. Wir sprechen über zukünftige Materialwahl, Farbgestaltung, Ergonomie und
über technische Ausstattungen.
This is a paragraph where you can include any information you’d like. It’s an opportunity to tell a story about the company.
Describe a feature you’d like to share about this company or highlight a particular service it offers.



